Mapa
Vídeo
Cod: 1174585

Casa - Residencial - Saúde

Rua Dom Antônio de Alvarenga - Saúde - São Paulo / SP

Casa para locação no Jardim da Saúde – São Paulo
Imóvel amplo e elegante, com 360 m² de área construída em terreno de 400 m², oferecendo até 4 vagas de garagem (dependendo do tamanho dos veículos). O projeto arquitetônico foi cuidadosamente pensado para aproveitar ao máximo a iluminação natural, proporcionando ambientes claros e acolhedores.
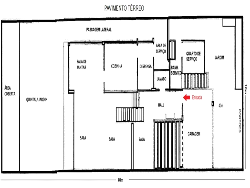
Piso térreo:
• Hall de entrada com lavabo
• Jardim de inverno
• Sala com pé-direito duplo
• Duas salas de estar
• Copa e cozinha com despensa
• Área de serviço, quarto e banheiro de apoio
• Quintal arborizado com espaço confortável para churrasqueira
Piso superior:
• 4 dormitórios (sendo 1 suíte)
• 3 dormitórios com terraço privativo
• 2 banheiros adicionais
• Sala íntima e 1 lavabo
O imóvel conta ainda com telhados novos e toda parte elétrica recém-instalada, garantindo segurança e tranquilidade.
Localização privilegiada
A poucos minutos da tradicional Esfirra Imigrantes e a apenas 2.500 metros da Estação Praça da Árvore do metrô.
Valor da locação: R$ 12.000/mês + R$ 1.600 de IPTU.

Locação
R$ 12.000,00
*Valores de preço, características, condomínio
e IPTU sujeitos a confirmação.
IPTU
R$ 1.600,00
Esta opção conta com:

Explore o mapa e Conheça Saúde

Nossos diferenciais

Pessoas e tecnologia em perfeito equilíbrio

Especialistas que cuidam de tudo para você

Assessoria que te dá segurança

Como é fácil fazer negócios com a Local!

1. Escolha do seu imóvel

Você escolhe seu imóvel em nosso site e é atendido por um de nossos especialistas que irá tirar todas as suas dúvidas.

2. Visita  

Esse é o momento de você conhecer in-loco o imóvel ou mais opções e se apaixonar pessoalmente por eles.

3. Proposta

Nesta fase você fará uma proposta comercial pelo imóvel que mais gostou e iniciaremos as negociações para chegarmos ao contrato.

4. Assinatura do contrato 

Aqui nós cuidamos de toda a documentação envolvendo as pessoas e o negócio e marcamos a assinatura do contrato, que pode ser digital ou presencial.

5. Pós-venda 

Nesta última fase, nossos profissionais te acompanharão até a escritura e registros cartorários e agora, sim!... Você recebe as chaves do imóvel e é hora de comemorar!