Mapa
Vídeo
Cod: 1180291

Lajes Corporativas - Comercial - Bela Vista

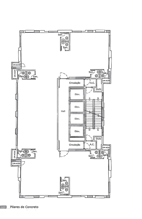
CONJUNTO CORPORATIVO – MEIO ANDAR (150 m²) | ED. REYNALDO RAUCCI

Oportunidade para empresas que buscam um espaço corporativo moderno, bem localizado e com excelente infraestrutura.

Conjunto comercial com 150 m² de área privativa, localizado no edifício corporativo Reynaldo Raucci, com entrada independente e 6 vagas de garagem.

Atualmente, os conjuntos estão integrados, formando um andar inteiro de 300 m². No entanto, podem ser locados de forma independente, mantendo total privacidade operacional.

Diferenciais do imóvel

* Planta versátil, ideal para escritórios, consultorias e empresas de serviços
* Entrada individual por conjunto
* Excelente distribuição interna, permitindo personalização do layout
* 6 vagas de garagem por conjunto

Infraestrutura e custos

* Condomínio: R$ 4.792,00/mês
* IPTU: R$ 3.589,17/mês

Valor de locação

* R$ 17.500,00/mês

Observação estratégica

Existe a possibilidade de locação do andar completo (300 m²), ideal para empresas que necessitam de maior operação integrada.

Uma excelente opção para empresas que buscam posicionamento, funcionalidade e flexibilidade em um único endereço.

Entre em contato para mais informações e agendamento de visita.

Locação
R$ 17.500,00
*Valores de preço, características, condomínio
e IPTU sujeitos a confirmação.
Condominio
R$ 4.800,00
IPTU
R$ 3.600,00
Esta opção conta com:

Explore o mapa e Conheça Bela Vista

Nossos diferenciais

Pessoas e tecnologia em perfeito equilíbrio

Especialistas que cuidam de tudo para você

Assessoria que te dá segurança

Como é fácil fazer negócios com a Local!

1. Escolha do seu imóvel

Você escolhe seu imóvel em nosso site e é atendido por um de nossos especialistas que irá tirar todas as suas dúvidas.

2. Visita  

Esse é o momento de você conhecer in-loco o imóvel ou mais opções e se apaixonar pessoalmente por eles.

3. Proposta

Nesta fase você fará uma proposta comercial pelo imóvel que mais gostou e iniciaremos as negociações para chegarmos ao contrato.

4. Assinatura do contrato 

Aqui nós cuidamos de toda a documentação envolvendo as pessoas e o negócio e marcamos a assinatura do contrato, que pode ser digital ou presencial.

5. Pós-venda 

Nesta última fase, nossos profissionais te acompanharão até a escritura e registros cartorários e agora, sim!... Você recebe as chaves do imóvel e é hora de comemorar!

Você também pode gostar
Gostou deste imóvel e quer ver mais opções? Então confira estes outros que separamos especialmente para você. Não perca estas oportunidades de encontrar o seu imóvel ideal.

LAJES CORPORATIVAS

Bela Vista

Conjunto com 292 m2 - mobiliado. O Torre João Salem está localizado na região Paulista da cidade São Paulo Com padrão corporativo de ocupação, o edifício é sede de empresas dos segmentos Agências de Turismo / Viagem, Jurídico e Prestadoras de Serviços, possui ar-condicionado Central e um total de 300 vagas de estacionamento. O edifício possui um total de 14 andares com lajes a partir de 345 m²e conta com 6 elevadores sociais.

Conhecer

LAJES CORPORATIVAS

Bela Vista

Tenha a sede de sua empresa ou escritório nesse andar alto, com maravilhosa vista e todas facilidades já instaladas; tudo pronto para usar e montar o lay out à sua conveniência. Está num dos prédios mais icônicos do centro de São Paulo com todas facilidades a seus pés como: restaurantes, comércio, fácil acesso por transporte público ou privado... Conheça e alugue!

Conhecer

LAJES CORPORATIVAS

Bela Vista

Conjunto comercial mobiliado com 400m² Com padrão corporativo de ocupação, o edifício é sede de empresas dos segmento . O edifício possui um total de 18 andares com lajes a partir de 400 m²e conta com 3 elevadores sociais. O Viking possui ar-condicionado Individual e um total de 108 vagas de estacionamento. OBS.: CONTRAPISO, SEM FORRO DE TETO

Conhecer

LAJES CORPORATIVAS

Bela Vista

Conjunto comercial com 200m² Com padrão corporativo de ocupação, o edifício é sede de empresas dos segmento . O edifício possui um total de 18 andares com lajes a partir de 400 m²e conta com 3 elevadores sociais. O Viking possui ar-condicionado Individual e um total de 108 vagas de estacionamento. OBS.: CONTRAPISO COM FORRO DE TETO.

Conhecer

LAJES CORPORATIVAS

Bela Vista

Conjunto com 292 m2 - mobiliado. O Torre João Salem está localizado na região Paulista da cidade São Paulo Com padrão corporativo de ocupação, o edifício é sede de empresas dos segmentos Agências de Turismo / Viagem, Jurídico e Prestadoras de Serviços, possui ar-condicionado Central e um total de 300 vagas de estacionamento. O edifício possui um total de 14 andares com lajes a partir de 345 m²e conta com 6 elevadores sociais.

Conhecer

LAJES CORPORATIVAS

Bela Vista

Andar corporativo com 383,67m2 para locação no coração da Av Paulista (em frente ao Metro Brigadeiro). 12 andar. Andar comercial disponível na Avenida Paulista, uma das localizações mais prestigiadas de São Paulo. No icônico Edifício Maria José, você estará em frente à estação de metrô Brigadeiro, garantindo fácil acesso para colaboradores e clientes. O edifício oferece uma infraestrutura completa, perfeita para empresas que desejam unir visibilidade e conveniência em um dos centros de negócios mais movimentados da cidade. Posicione sua empresa no coração de São Paulo! 1 Recepção 12 Salas incluindo para Area Financeira, Juridica, Atendimento, Arquivo, Depósito 1 Área de Descompressão 5 Banheiros Vista Linda para Paulista!

Conhecer

LAJES CORPORATIVAS

Bela Vista

Conjunto comercial com 200m² Com padrão corporativo de ocupação, o edifício é sede de empresas dos segmento . O edifício possui um total de 18 andares com lajes a partir de 400 m²e conta com 3 elevadores sociais. O Viking possui ar-condicionado Individual e um total de 108 vagas de estacionamento. OBS.: CONTRAPISO, SEM FORRO DE TETO.

Conhecer

LAJES CORPORATIVAS

Bela Vista

Conjunto comercial com 200m² Com padrão corporativo de ocupação, o edifício é sede de empresas dos segmento . O edifício possui um total de 18 andares com lajes a partir de 400 m²e conta com 3 elevadores sociais. O Viking possui ar-condicionado Individual e um total de 108 vagas de estacionamento. OBS.: MOBILIADO COM 30 POSIÇÕES DE TRABALHO.

Conhecer

LAJES CORPORATIVAS

Bela Vista

CONJUNTO CORPORATIVO – MEIO ANDAR (150 m²) | ED. REYNALDO RAUCCI Oportunidade para empresas que buscam um espaço corporativo moderno, bem localizado e com excelente infraestrutura. Conjunto comercial com 150 m² de área privativa, localizado no edifício corporativo Reynaldo Raucci, com entrada independente e 6 vagas de garagem. Atualmente, os conjuntos estão integrados, formando um andar inteiro de 300 m². No entanto, podem ser locados de forma independente, mantendo total privacidade operacional. Diferenciais do imóvel * Planta versátil, ideal para escritórios, consultorias e empresas de serviços * Entrada individual por conjunto * Excelente distribuição interna, permitindo personalização do layout * 6 vagas de garagem por conjunto Infraestrutura e custos * Condomínio: R$ 4.792,00/mês * IPTU: R$ 3.589,17/mês Valor de locação * R$ 17.500,00/mês Observação estratégica Existe a possibilidade de locação do andar completo (300 m²), ideal para empresas que necessitam de maior operação integrada. Uma excelente opção para empresas que buscam posicionamento, funcionalidade e flexibilidade em um único endereço. Entre em contato para mais informações e agendamento de visita.

Conhecer

LAJES CORPORATIVAS

Bela Vista

Laje inteira na Av Paulista, excelente oportunidade, com 302,60m úteis,confira São 7 salas unificadas. perto da Brig Luis Antonio e do Metro Brigadeiro. Prédio tem classificação C no site da Buildings. Venha conhecer. Seu escritório está aqui. A av Paulista é centro financeiro de S Paulo, onde estão os maiores bancos, os melhores hospitais.

Conhecer

LAJES CORPORATIVAS

Bela Vista

Sala comercial em um das esquinas mais movimentadas de São Paulo (Av.Paulista x Av.Brigadeiro luís Antônio) Vista privilegiada para a Av.Paulista ,totalmente aberta para colocação de divisórias, andar alto, excelente estado de conservação, toda cabeada para estação de trabalho. Agenda sua visita para conhecer esta excelente oportunidade .

Conhecer

LAJES CORPORATIVAS

Bela Vista

Conjunto com 292 m2 - parcialmente mobiliado. O Torre João Salem está localizado na região Paulista da cidade São Paulo Com padrão corporativo de ocupação, o edifício é sede de empresas dos segmentos Agências de Turismo / Viagem, Jurídico e Prestadoras de Serviços, possui ar-condicionado Central e um total de 300 vagas de estacionamento. O edifício possui um total de 14 andares com lajes a partir de 345 m²e conta com 6 elevadores sociais.

Conhecer